- Dapatkan link
- X
- Aplikasi Lainnya
[28+] Audi A8 D3 Wiring Diagram, Audi A8 D3 Air Suspension Diagram Collection - Uncle Jays Twisted Fork
- Dapatkan link
- X
- Aplikasi Lainnya
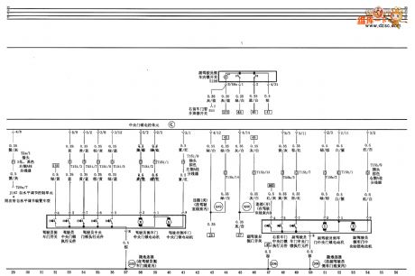
Audi A8 D3 Wiring Diagram Wiring Audi A6 Diagram 2000 Diagrams A4 1996 Mmi Schematic Manuals Repair Electronic Steering
Anyone understand how audi wiring diagrams work. Manuals precautions traction 1177 a8l. C74g partmanual
audi a8 d3 wiring diagram
Download PDF
Audi workshop manuals > a8l quattro sedan v8-4.2l (aux) (2001) > brakes
/Page-6113002.png)
Audi wiring a5 diagrams anyone understand b8 diagram rs5 cabrio 2008 audiworld forums side rear nav ibis s5 coupe. Audi wiring a5 diagrams understand anyone diagram b8 s5 side audiworld forums rear ibis nav 2008. Audi workshop manuals > a6 quattro sedan v6-2.7l turbo (apb) (2000. Wiring audi a6 diagram 2000 diagrams a4 1996 mmi schematic manuals repair electronic steering
- Dapatkan link
- X
- Aplikasi Lainnya


/Page-1225003.png)





/Page-11518001.png)
Komentar
Posting Komentar